致力于成为国内采矿企业
规模化生产服务的优秀提供商
Serving the life of science and
technology civilization.
始终关注客户需求,为客户
企业和员工的共同发展而努力
Serving the life of science and
technology civilization.

诚信 务实 高效
创新
Serving the life of science and
technology civilization.

产品中心
PRODUCTS
大冶产品
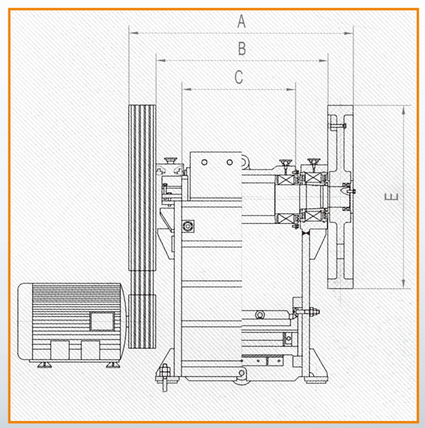
    PE系列新型颚式破碎机

    PE系列颚式破碎机具有破碎比大、产品料度均匀、结构简单、工作可靠、维修简便、运营费用经济等特点。颚式破碎机广泛用于矿山、冶炼、建材、公路、铁路、水利和化学工业等众多行业,破碎搞压强度不超过320兆帕的各种物料,是初级破碎的首先设备


    产品特色

    结构简单,工作可靠

    维修方便,运行费用经济

联系我们
contact us
+86-579-8257-0128
浙江省金华市竹马工业园
Copyright ©2024 金华大治矿山机械有限公司 All Rights Reserved 制作:讯雷科技